Product introduction >Product introduction
> Hydraulic cylinder
 
 

¡Ø You can see product photographs, drawings and site photographs by clicking on photographs

¡¡
Product description
Features: This cylinder is widely used in the fields such as underwater jacking, construction of bridges, repair work for heavy objects and basic civil engineering works, etc.
It is especially very good for long-term use in bridge construction sites. Load can be fixed at the location wanted using the safety lock nut for load holding. Over flow plot prevents separation of the plunger when load is applied.
It is easy to handle as there are eyebolts for lift.
It is strong against corrosion as the plunger and the inside of cylinder are chrome coated.
Double-acting cylinder and single-acting cylinder spring return type can also be manufactured upon receipt of separate order.
  • Single return type
  • Installation of grooved saddle to prevent heavy objects from slipping
  • Capacity ?: 30 ~ 200 ton
  • Stroke : 200 ~ 230 mm
  • Pressure used: 700 bar
  • Coupler: 3/8" PT
  • Special cylinders can be custom-manufactured
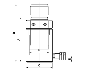
  • Product specification
    Model Cylinder
    Capacity
    (tons)
    Stroke
    (mm)
    Cylinder
    Effective
    Area (§²)
    Oil
    Capacity
    (cc)
    Retracted
    Height
    Extended
    Height
    Cylinder
    Out Dia.
    Cylinder
    Bore Dia.
    Base to
    Inlet
    port
    Weight
    (kgs)
    A B C D E
    SLN-30200 30 200 38.4 883 405 605 102 70 39 23
    SLN-50200 50 200 63.6 1141 424 624 127 90 39 38
    SLN-100230 100 230 132.7 3292 499 729 185 130 39 95
    SLN-150230 150 230 201 4918 578 808 225 160 52 164
    SLN-200230 200 230 268.8 6562 615 845 225 185 60 224